行星齿轮减速器结构图例

1  NGW型单级行星减速器

(太阳轮浮动2.8~4.5zAzC)

2  NGW型单级行星减速器

(太阳轮浮动4.5zAzC)

3  NGW型单级行星减速器

(无多余约束的浮动zAzC)

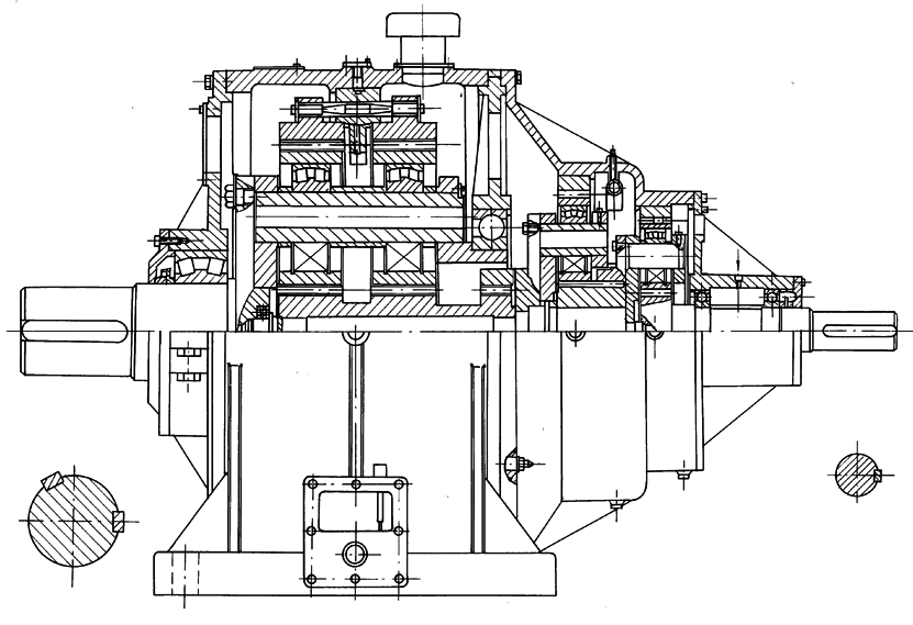
4  NGW型行星齿轮减速器

(弹性油膜浮动与太阳轮浮动均载)

5  NGW型单级行星减速器

(行星架浮动)

双排直齿NGW型大规格行星减速器

(两排内齿轮之间采用弹性杆均载高速端的端盖为轴向剖分式)

7  NGW型高速行星增()速器

(太阳轮与内齿圈同时浮动)

8  NGW型二级行星减速器

(高速级太阳轮与行星架同时浮动低速级太阳轮浮动)

定轴齿轮传动与NGW型组合的行星减速器

(低速级太阳轮浮动)

10  NGW型二级行星减速器

(高速级行星架浮动低速级太阳轮浮动)

11  法兰式NGW型二级行星减速器

(高速级行星架浮动低速级太阳轮浮动低速轴采用平键连接或缩套无键连接)

12  二级NGW型大规格行星减速器

(高速级太阳轮与行星架浮动低速级太阳轮浮动)

13  挖掘机用行走型行星减速器

(二级NGW型传动与一级平行轴传动组合低速级太阳轮浮动中间级行星架浮动高速级带制动器)

14  挖掘机用回转型行星减速器

(高速级行星架浮动低速级太阳轮浮动)

15  NGW型三级行星减速器

(一级:行星架浮动二级:太阳轮与行星架同时浮动三级:太阳轮浮动)

16  NGW型三级大规格行星减速器

(高速级行星架浮动中间级太阳轮与行星架同时浮动低速级太阳轮浮动并采用双排齿轮两排内齿轮以弹性杆均载)

17  行星架固定的NW型准行星减速器

(传动比i5~50两个行星轮与水平方向成45°双联行星轮采用弹性胀套连接加工、装配方便)

18  NGWN()型行星减速器

(内齿轮通过浮动双联齿轮联轴器与输出轴相连太阳轮不浮动)

19  NGWN()型行星减速器

(采用薄壁弹性输出内齿轮并以齿轮联轴器与输出轴相连太阳轮不浮动)